Contact Us
59 Main Street, Clogher, BT76 0AA 028 8554 8242
Estate Agents in Tyrone
« Back
For sale | Site (with FPP), 0.5 acres |
Offers over £175,000

Prime Residential Sites With Planning Approval, Drumanphy & Teaguy Road Portadown , BT62 1SN

Offers over £175,000

Key Information

Address Prime Residential Sites With Planning Approval, Drumanphy & Teaguy R...Portadown
Status For sale
Price Offers over £175,000
Land type Building Site
Planning Full Planning Permission
Size 0.5 acres

Additional Information

Drumanphy & Teaguy Road, Portadown, Craigavon, Co Armagh BT62 1SN

Prime Residential Sites with Planning Approval

Location

Situated along the sought-after Drumanphy Road, these sites enjoy a pleasant rural setting while remaining conveniently close to the amenities of Portadown, located approximately 4 miles away. The area offers an ideal balance of countryside living, while maintaining easy access to key transport links, including the M1 motorway via the Craigavon area, providing a convenient route to Belfast, approximately 30 miles away.

Key Features

Site 1

  • Full Planning Permission for an Impressive One and a Half Storey Dwelling with Detached Domestic Garage.
  • Beautifully Designed for Modern Family Living with a Striking Open-Plan Layout.
  • Expansive Kitchen, Dining and Family Space with a Separate Living Area.
  • Seamless Flow onto a Generous Terrace, Ideal for Outdoor Entertaining and Al Fresco Living.

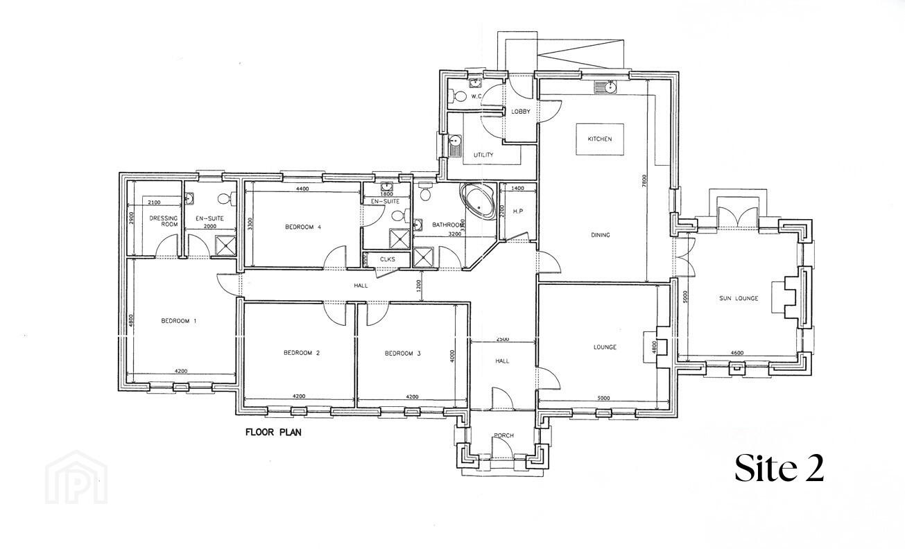
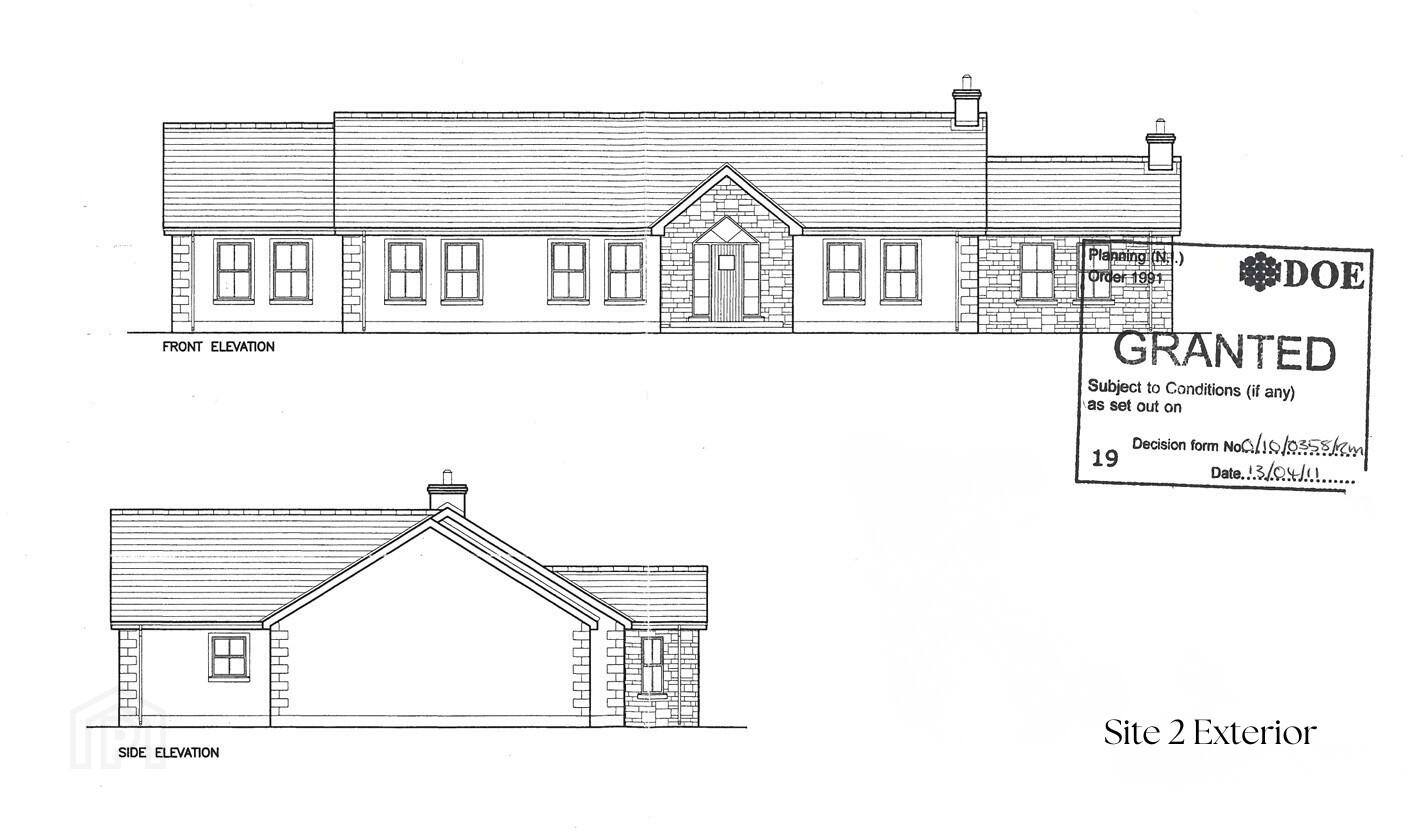
Site 2

  • Full Planning Permission for a Substantial Four Bedroom Bungalow with Detached Garage.
  • Large Master Suite with Walk-In Wardrobe and En-Suite, Plus a Second En-Suite Bedroom.
  • Spacious Open-Plan Kitchen and Dining Area Forming the Heart of the Home.
  • Two Additional Reception Rooms Offering Versatile and Refined Living Spaces

General

  • Two Generous Sites Extending to Approximately C. 0.5 Acres Each.Utilities Located in Close Proximity
  • An exceptional opportunity to build a contemporary home in a sought after location.

Sale Detail:

Offers  over:

Site 1: £150,000

Site 2: £150,000

Are you thinking of selling your property?

or would you like a Free valuation to advise what price you could expect if you decided to sell?

Like many of our valued clients already have, Give our proffessional team a call for a FREE no obligation confidential discussion on 02885548242 and we would be happy to assist you whatever property your enquiry relates to.

 

 

 

Need some more information?

Fill in your details below and a member of our team will get back to you.

Please check you have entered all details correctly: