RA Noble & Co

Site With Full Planning Permission, Corrick Road, Augher BT77 0BY

Development Land (with FPP) For Sale

Offers around £150,000

Print additional images & map (disable to save ink)

Photo 1 of Site With Full Planning Permission, Corrick Road, Augher

Telephone:

028 8554 8242

View Online:

www.nobleauctioneers.co.uk/1066082

Key Information

Address Site With Full Planning Permission, Corrick Road, Augher
Status For sale
Price Offers around £150,000
Land type Commercial Land
Planning Full Planning Permission
Size 0.74 acres

Additional Information

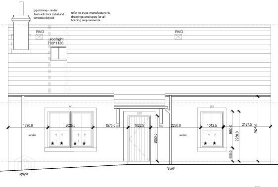
Site with Full Planning Permission for 3 Luxury Units, Corrick Road, Augher, BT77 0BY

Excellent Development Opportunity

Location

The subject site is located on Corrick Road on the outskirts of Augher, an attractive village within the Clogher Valley in County Tyrone. The area lies close to established tourist destinations including Corick House Hotel & Spa, the wider Clogher Valley, and the Fermanagh Lakelands. The site also benefits from convenient access to the A4 Belfast to Enniskillen road providing strong connectivity to the surrounding region and making it well suited to tourism and short-stay accommodation.

Key Features

  • Prime tourism development opportunity with full planning permission in place
  • Approval for three self-catering tourist chalets
  • Comprising two 2 bedroom units and one 1 bedroom unit
  • Well designed layouts with open plan kitchen, dining, and living areas
  • All properties designed with cut truss roofs, allowing for the potential addition of two further bedrooms to each unit (subject to necessary consents), creating chalet bungalow-style accommodation
  • Utilities/services located in close proximity to the site
  • Ready to build investment opportunity

Full planning drawings and supporting documentation available upon request.

Indicative boundary maps – For illustrative purposes only

Sale Detail

Offers in the region of £150,000

Are you thinking of selling your property?

or would you like a Free valuation to advise what price you could expect if you decided to sell?

Like many of our valued clients already have, Give our proffessional team a call for a FREE no obligation confidential discussion on 02885548242 and we would be happy to assist you whatever property your enquiry relates to.

 

 

 

 

  • RA Noble & Co

    RA Noble & Co

    028 8554 8242

Photo Gallery

Photo 1 of Site With Full Planning Permission, Corrick Road, Augher Photo 2 of Site With Full Planning Permission, Corrick Road, Augher Photo 3 of Site With Full Planning Permission, Corrick Road, Augher Photo 4 of Site With Full Planning Permission, Corrick Road, Augher Photo 5 of Site With Full Planning Permission, Corrick Road, Augher Photo 6 of Site With Full Planning Permission, Corrick Road, Augher Photo 7 of Site With Full Planning Permission, Corrick Road, Augher Photo 8 of Site With Full Planning Permission, Corrick Road, Augher Photo 9 of Site With Full Planning Permission, Corrick Road, Augher Photo 10 of Site With Full Planning Permission, Corrick Road, Augher Photo 11 of Site With Full Planning Permission, Corrick Road, Augher Photo 12 of Site With Full Planning Permission, Corrick Road, Augher Photo 13 of Site With Full Planning Permission, Corrick Road, Augher Photo 14 of Site With Full Planning Permission, Corrick Road, Augher Photo 15 of Site With Full Planning Permission, Corrick Road, Augher Photo 16 of Site With Full Planning Permission, Corrick Road, Augher Photo 17 of Site With Full Planning Permission, Corrick Road, Augher

Visit www.nobleauctioneers.co.uk for further details.